売買 新築・中古
フォレクス大島町(2-B棟)
宮崎市大島町立野1478-22(2-B棟)2025(R7)年9月
2,890
万円
4LDK
地図
- 構造
- 木造2階建て
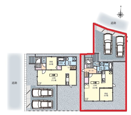
- 駐車場
- 並列2台可
- 部屋の向き
- 南
- 現況
- 未入居
- バス停・駅
- 笹原バス停徒歩5分、宮崎神宮駅徒歩16分
- 地目
- 宅地
- 都市計画
- 市街化区域
- 土地権利
- 所有権
- 取引形態
- 媒介
- 学校区
- 東大宮小学校 ・ 東大宮中学校
- 用途地域
- 第2種住居専用地域
- 建物延べ面積
- 98.74㎡(29.86坪)
- 建ぺい率・容積率
- 60%・200%
- 接道
- 北側公道約5.7m
- 土地面積
- 145.85㎡(44.11坪)
- 月々の支払い例(金額)
- 82,934円
- 月々の支払い例(条件)
- ★全額借入(頭金0、ボーナス払い0)、変動金利1.1%、35年返済の場合
- 特徴
-
大島町の閑静な住宅地です。
徒歩10分圏内に飲食店、スーパー、病院等が多数あり、生活・交通利便性良好!
新築2区画、4LDK、日当たり良好です。
駐車場並列2台可!
浴室暖房・浴室乾燥機付き!システムキッチン・複層ガラス・室内物干し・トイレ2箇所等設備充実!
- 設備
- ウォシュレット シャンプードレッサー システムキッチン 給湯 シャワー 室内洗濯機置場 モニター付インターホン 浴室・トイレ別 カウンターキッチン シューズボックス 2台目駐車場
この物件について
お問い合わせする
contact
お問い合わせする
