賃貸アパート・マンション
アルテマイスターREVEⅡ(5号)
宮崎市永楽町942021(R3)年1月
64,000
円~
共益費1000円
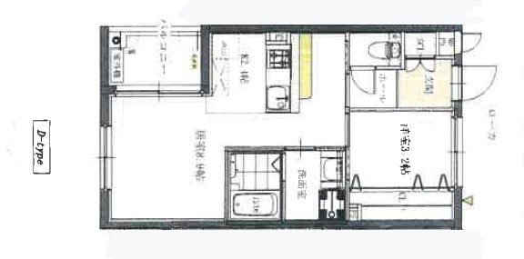
1LDK
地図
- 間取り内訳
- LDK11.3・洋3.2
- 駐車場
- 敷地外6600円
- その他
- 鍵交換代
- 専有面積
- 37.20㎡
- 敷金
- 2ヶ月
- 構造
- RC造5階建て
- 礼金
- なし
- ペット飼育
- 不可
- 保証料
- 初回総賃料の80%
- 部屋の向き
- 西
- 保険加入
- 火災保険
- バス停・駅
- 宮中前バス停徒歩4分・宮崎駅徒歩15分
- 取引形態
- 媒介
- 学校区
- 宮崎小学校 ・ 宮崎中学校
- 空室状況
- ・405号(64000円)、 ・505号(65000円)
- 特徴
-
永楽町のデザイナーズマンションです!
RC造りで遮音性、耐熱性に優れています。
オートロック・防犯カメラ・TVモニターホン・複層ガラス完備でセキュリティも安心。
エルセ(活性水生成装置)完備で美容・健康にこだわる貴方にオススメです。
高級感のある室内仕様!広々としたリビングで明るく広いお部屋です。
ついちょる~むシンプルプラン光1GWifi無料。
5号は西向きの1LDK!単身の方にオススメです!
- 設備
- 都市ガス エレベータ エアコン バルコニー オートロック ウォシュレット シャンプードレッサー CATV対応 給湯 シャワー 室内洗濯機置場 モニター付インターホン 駐輪場 浴室・トイレ別 カウンターキッチン wifi無料 照明器具付 シューズボックス ついちょる~む 宅配ボックス 敷地内ゴミ置場
ご契約までの流れはこちら
この物件について
お問い合わせする
contact
お問い合わせする
