賃貸 店舗事務所
川原ビルディング(1階)
宮崎市永楽町1321979(S54)年2月
77,000
円
共益費込
地図
- 駐車場
- 2台込み
- その他
- 鍵交換代
- 敷金
- 3ヶ月
- 構造
- 鉄筋コンクリート造4階建て
- 礼金
- なし
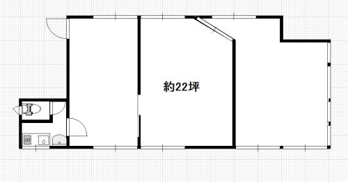
- 面積
- 72.72㎡(22.0坪)
- 保証料
- 初回総賃料の100%
- 保険加入
- 火災保険
- 現況
- 空室
- バス停・駅
- 昭和町バス停徒歩2分・宮崎駅徒歩17分
- 取引形態
- 媒介
- 特徴
-
昭和町交差点近くの1階ワンフロア貸店舗です。
駐車場東側通り沿いに2台込み(車種によっては縦列4台可)
西側駐車場に1台5000円!
宮崎駅徒歩17分!※飲食店も可能です!
- 設備
- 2台目駐車場
ご契約までの流れはこちら

この物件について
お問い合わせする
contact
お問い合わせする