注文住宅 A様邸
-
外観 水平ラインが美しく、ロックガーデンやおしゃれな外部立水栓も…すべて素敵です! -
玄関ショーケース 実は仕掛けが…? -
ショーケースの裏側なんですが… -
開きます!隠し扉になっています! -
造作のハイドアは寸法、丁番、戸当たりなど全てに検証を重ねたオリジナルです! -
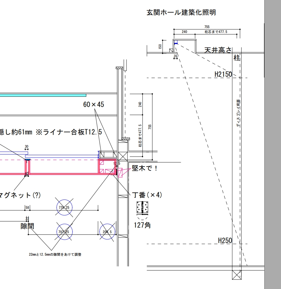
この間接照明の角度にもかなりこだわりました!そして鏡もセンス抜群…! -
詳細図の一部を公開!現場でも協議、変更を重ね、大工さんも完璧に仕上げてくれました! -
広々LDKには鉄骨階段の先にロフトが!アイランドキッチンもテーブルも素敵すぎます! -
壁掛けTVは金具の厚み分を凹ませ、横から金具が見えない工夫が! -
こう納まります!配線部分にも工夫が…(書ききれない!) -
トイレもホテルのような高級感…!照明のチョイスが素敵すぎます🥰 -
照明パターン変更 こっちも良い雰囲気💕 -
流行のウェルカム洗面はサンワカンパニー製。おしゃれ(語彙力…😂) -
1.28坪のランドリールームの奥には1.5坪のユニットバス😎 -
ミッ〇ーもいます。ここに住みたいわ🥹
この住宅について
アイデアの詰まった素敵な新築住宅が完成しました!
長期優良住宅、耐震等級3、省令準耐火仕様、断熱性能等級5、一次エネルギー消費量等級6、劣化対策等級3、維持管理対策等級3…などなど
地盤改良も実施し安心安全快適な住宅です🥳シロアリ保証も10年間ついています🥰
伝えきれないこの魅力は、各写真を見てほしい😆
長期優良住宅、耐震等級3、省令準耐火仕様、断熱性能等級5、一次エネルギー消費量等級6、劣化対策等級3、維持管理対策等級3…などなど
地盤改良も実施し安心安全快適な住宅です🥳シロアリ保証も10年間ついています🥰
伝えきれないこの魅力は、各写真を見てほしい😆
